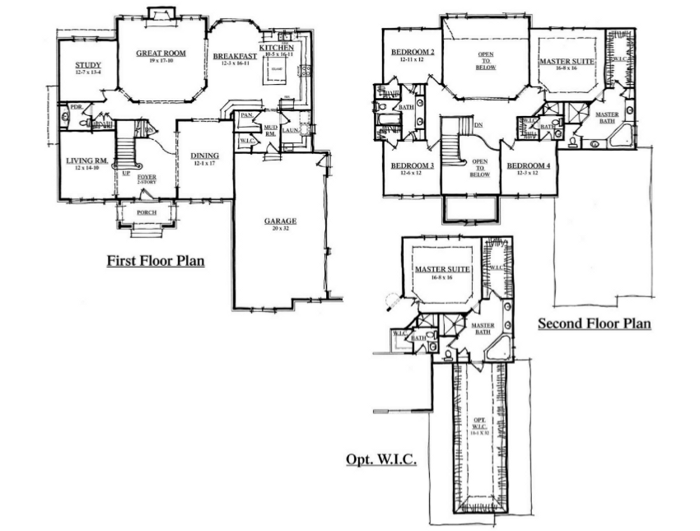
The Lancaster
Model:
The Lancaster ||
Sq. Ft.
3,492
<
Show Floor Plan
>
Download Plan
Close