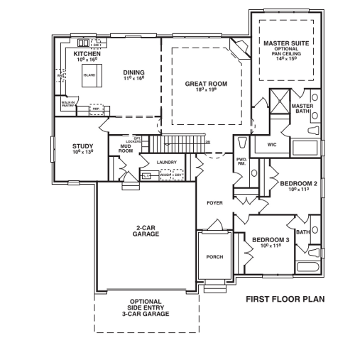
The Glenwood
Model:
The Glenwood ||
Sq. Ft.
2,214
<
Show Floor Plan
>
Download Plan
Close