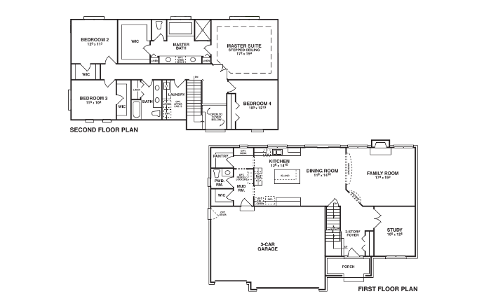
The Claire
Model:
The Claire ||
Sq. Ft.
2,653
<
Show Floor Plan
>
Download Plan
Close