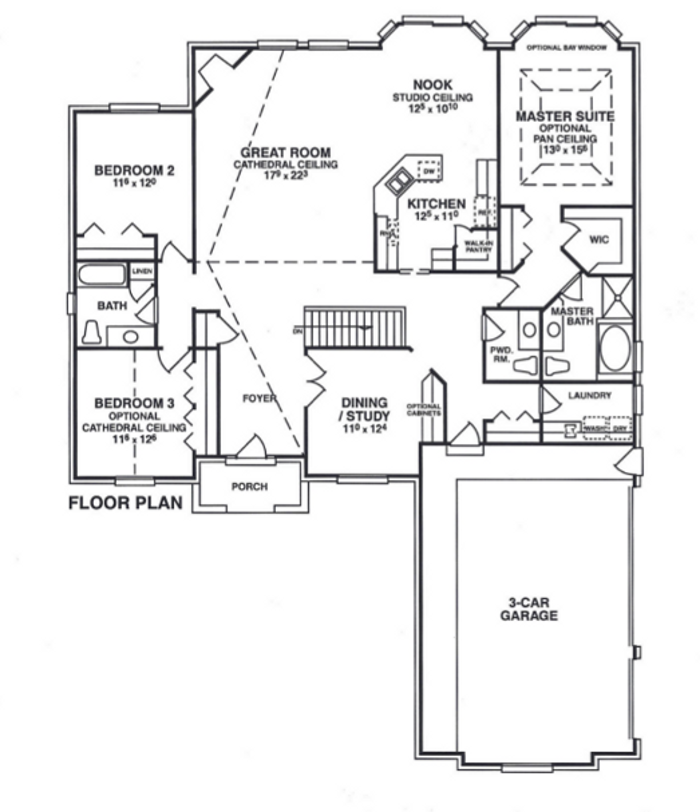
The Brookfield
Model:
The Brookfield ||
Sq. Ft.
<
Show Floor Plan
>
Download Plan
Close