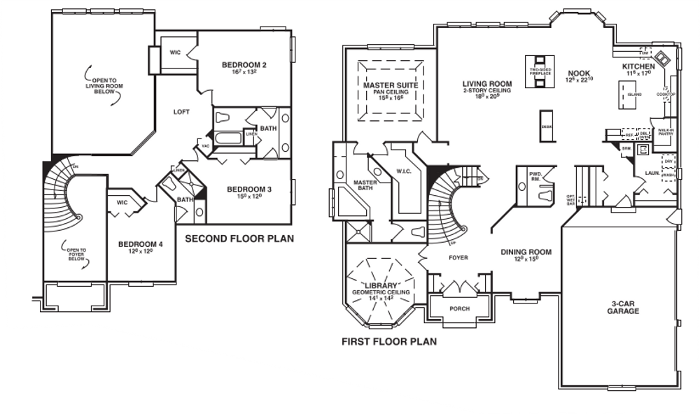
The Bloomington II

Model: The Bloomington II || Sq. Ft. 3,783

Show Floor Plan

Download Plan Close